DF型带短节联轴器(HG21569、1-95)
发布时间:2018/03/26

|
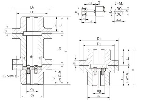
1、DF型带短节联轴器适用于XD系列机架的减速机输出轴与搅拌轴之间的联结及XS型双支点机架双支点之间轴的联结。其长度L,L0也可根据用户要求变更。 2、DT型刚性凸缘联轴器与GT型类似增加了轴向止推定位装置。 3、允许采用不同孔径不同配合长度的组合。型号后请加注A,B或C以确定L0,L1。 4、型号后加注材料代号。 |
![]() |
1、DF型带短节联轴器主要尺寸
| 标定符号 |
轴径 dg |
许用扭矩 N·m |
最高转速 | δ1 | M3*l3 | D2 | D2 | d3 | d4 | L | L0 | L1 | L2 | L10 | L12 | L4 | b | t | 重量kg | ||||||
| A | B | C | A | B | C | A | B | C | |||||||||||||||||
| DF20 | 20 | 46 | 2200 | 14 | M5*12 | 120 | 95 | 50 | 40 | 272 | 352 | 227 | 155 | 235 | 110 | 50 | 55 | 45 | 48 | 12 | 6 | 3.5 | 13 | 17 | 12 |
| DF25 | 25 | 70 | 22000 | 14 | M5*12 | 120 | 95 | 55 | 45 | 272 | 352 | 227 | 155 | 235 | 110 | 50 | 55 | 45 | 48 | 17 | 8 | 4 | 13 | 17 | 12 |
| DF30 | 30 | 87 | 2200 | 16 | M6*16 | 120 | 95 | 62 | 50 | 272 | 352 | 227 | 155 | 235 | 110 | 50 | 55 | 45 | 48 | 20 | 8 | 4 | 13 | 17 | 12 |
| DF35 | 35 | 236 | 2150 | 16 | M6*16 | 130 | 105 | 76 | 60 | 301 | 376 | 251 | 160 | 250 | 110 | 60 | 67 | 55 | 58 | 20 | 10 | 5 | 19 | 22 | 17 |
| DF40 | 40 | 236 | 2150 | 16 | M6*16 | 130 | 105 | 76 | 60 | 301 | 376 | 251 | 160 | 250 | 110 | 60 | 67 | 55 | 58 | 20 | 12 | 5 | 19 | 22 | 17 |
| DF45 | 45 | 355 | 1960 | 20 | M8*18 | 155 | 125 | 90 | 70 | 339 | 429 | 279 | 170 | 260 | 110 | 70 | 81 | 60 | 68 | 25 | 14 | 5.5 | 30 | 38 | 26 |
| DF50 | 50 | 470 | 1960 | 20 | M8*18 | 170 | 140 | 90 | 70 | 339 | 429 | 279 | 170 | 260 | 110 | 70 | 81 | 60 | 68 | 25 | 14 | 5.5 | 36 | 44 | 32 |
| DF55 | 55 | 730 | 1940 | 20 | M8*18 | 170 | 140 | 90 | 70 | 383 | 508 | 313 | 180 | 305 | 110 | 85 | 98 | 75 | 83 | 25 | 16 | 6 | 46 | 60 | 39 |
| DF60 | 60 | 1000 | 1870 | 24 | M10*20 | 210 | 180 | 120 | 85 | 412 | 538 | 343 | 180 | 305 | 110 | 100 | 112 | 90 | 98 | 30 | 18 | 7 | 53 | 64 | 45 |
| DF65 | 65 | 1200 | 1790 | 24 | M10*20 | 210 | 180 | 120 | 85 | 413 | 538 | 343 | 180 | 305 | 110 | 100 | 112 | 90 | 98 | 30 | 18 | 7 | 53 | 64 | 45 |
| DF70 | 70 | 1400 | 1720 | 24 | M10*20 | 210 | 180 | 120 | 85 | 413 | 538 | 343 | 180 | 305 | 110 | 100 | 112 | 90 | 98 | 35 | 20 | 7.5 | 53 | 64 | 51 |
| DF75 | 75 | 2150 | 1660 | 24 | M10*20 | 215 | 185 | 120 | 85 | 451 | 566 | 371 | 190 | 305 | 110 | 110 | 126 | 100 | 108 | 35 | 20 | 7.5 | 61 | 73 | 62 |
| DF80 | 80 | 2700 | 1630 | 28 | M12*25 | 235 | 200 | 130 | 110 | 471 | 586 | 401 | 190 | 305 | 120 | 120 | 136 | 110 | 118 | 35 | 22 | 9 | 72 | 88 | 62 |
| DF85 | 85 | 3400 | 1590 | 28 | M12*25 | 235 | 200 | 130 | 110 | 471 | 586 | 401 | 190 | 305 | 120 | 120 | 136 | 110 | 118 | 50 | 22 | 9 | 72 | 88 | 68 |
| DF90 | 90 | 4120 | 1590 | 32 | M12*35 | 235 | 200 | 140 | 125 | 501 | 646 | 411 | 220 | 365 | 130 | 120 | 136 | 110 | 118 | 50 | 25 | 9 | 81 | 101 | 86 |
| DF95 | 95 | 5200 | 1570 | 32 | M12*25 | 265 | 220 | 160 | 125 | 521 | 666 | 441 | 220 | 365 | 140 | 130 | 146 | 120 | 128 | 50 | 25 | 9 | 93 | 120 | 86 |
| DF100 | 100 | 5800 | 1470 | 32 | M12*25 | 265 | 220 | 160 | 125 | 521 | 666 | 441 | 220 | 365 | 140 | 130 | 146 | 120 | 128 | 50 | 28 | 10 | 93 | 120 | 135 |
| DF110 | 110 | 9000 | 1360 | 35 | M12*25 | 290 | 245 | 180 | 150 | 569 | 694 | 479 | 240 | 365 | 150 | 140 | 160 | 130 | 138 | 50 | 28 | 10 | 153 | 187 | 183 |
| DF120 | 120 | 12500 | 1260 | 38 | M12*25 | 330 | 275 | 190 | 160 | 599 | 724 | 519 | 240 | 365 | 160 | 155 | 175 | 140 | 153 | 60 | 32 | 11 | 198 | 235 | 183 |
| DF125 | 125 | 16000 | 1240 | 38 | M16*30 | 330 | 275 | 200 | 180 | 599 | 724 | 519 | 240 | 365 | 160 | 155 | 175 | 140 | 153 | 60 | 32 | 11 | 198 | 235 | 183 |
| DF130 | 130 | 16000 | 1240 | 40 | M16*30 | 330 | 275 | 200 | 180 | 599 | 724 | 519 | 240 | 365 | 160 | 155 | 175 | 140 | 153 | 60 | 32 | 11 | 198 | 235 | 256 |
| DF140 | 140 | 19000 | 1225 | 40 | M16*30 | 360 | 305 | 220 | 200 | 647 | 762 | 577 | 250 | 365 | 180 | 170 | 194 | 160 | 168 | 60 | 36 | 12 | 278 | 323 | 360 |
| DF150 | 150 | 30000 | 1200 | 45 | M16*30 | 380 | 320 | 240 | 210 | 711 | 826 | 671 | 250 | 365 | 210 | 200 | 226 | 190 | 198 | 60 | 36 | 12 | 381 | 424 | 360 |
| DF160 | 160 | 30000 | 1200 | 45 | M16*30 | 380 | 320 | 240 | 210 | 711 | 826 | 671 | 250 | 365 | 210 | 200 | 226 | 190 | 198 | 60 | 40 | 13 | 381 | 424 | 360 |
| DF180 | 180 | 31000 | 1200 | 50 | M20*40 | 410 | 350 | 280 | 240 | 830 | 980 | 780 | 280 | 430 | 230 | 240 | 270 | 230 | 238 | 60 | 45 | 15 | 431 | 454 | 410 |
| DF200 | 200 | 33750 | 1200 | 55 | M20*40 | 440 | 360 | 310 | 270 | 830 | 980 | 780 | 280 | 430 | 230 | 240 | 270 | 230 | 238 | 60 | 45 | 15 | 481 | 508 | 470 |
2、DT型刚性凸缘联轴器高度尺寸H(其余尺寸同DF型)
| dg | 20 25 30 | 35 40 | 45 50 | 55 | 60 65 70 | 75 | 80 85 90 | 95 100 | 110 | 120 125 130 | 140 | 150 160 | 180 | 200 |
| H | 117 | 141 | 169 | 203 | 233 | 261 | 281 | 301 | 329 | 359 | 397 | 461 | 550 | 550 |



